Foundation plan of the boundary wall in detail AutoCAD 2D drawing, CAD file, dwg file
Description
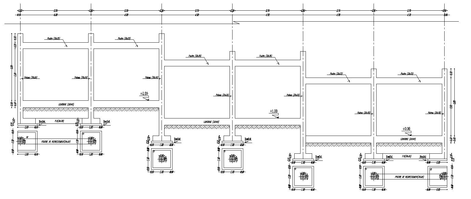
This architectural drawing is the Foundation plan of the boundary wall in detail AutoCAD 2D drawing, CAD file, dwg file. The foundation plan is a sectional drawing of the plan view that depicts the placement and dimensions of the footings, piers, columns, foundation walls, and supporting beams. The floor plan, plot plan, and elevation plan drawings serve as the basis for the foundation plan's information. For more details and information download the drawing file. Thank you for visiting our website cadbull.com.
Uploaded by:
viddhi
chajjed
