2D drawing of boundary wall section and elevation in detail AutoCAD design, CAD file, dwg file
Description
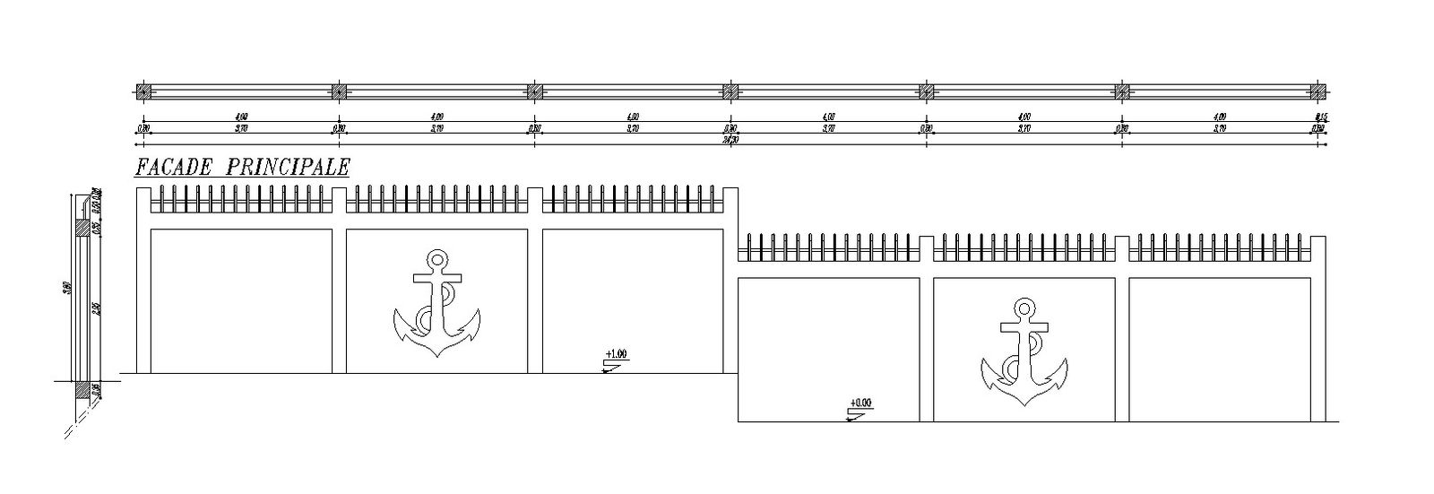
This architectural drawing is 2D drawing of boundary wall section and elevation in detail AutoCAD design, CAD file, dwg file. For more details and information download the drawing file. Thank you for visiting our website cadbull.com.
Uploaded by:
viddhi
chajjed

