Design of boundary wall section and elevation in detail AutoCAD drawing, CAD file, dwg file
Description
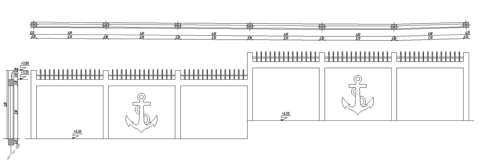
This architectural drawing is the Design of the boundary wall section and elevation in detail AutoCAD drawing, CAD file, and dwg file. For more details and information download the drawing file. Thank you for visiting our website cadbull.com.
Uploaded by:
viddhi
chajjed

