2D design of typical wall section with formwork and reinforcement details in AutoCAD drawing, CAD file, dwg file
Description
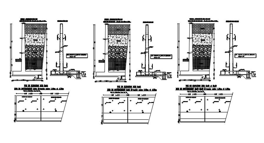
This architectural drawing is the 2D design of a typical wall section with formwork and reinforcement details in AutoCAD drawing, CAD file, and dwg file. For more details and information download the drawing file. Thank you for visiting our website cadbull.com.
Uploaded by:
viddhi
chajjed

