CAD design of FORMWORK FOUNDATION in detail AutoCAD 2D drawing, CAD file, dwg file
Description
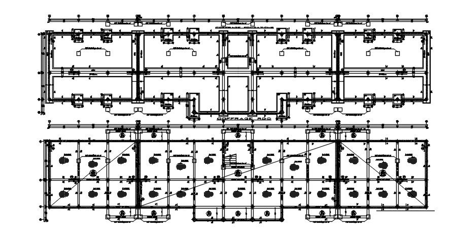
This architectural drawing is a CAD design of FORMWORK FOUNDATION in detail AutoCAD 2D drawing, CAD file, dwg file. There are numerous techniques to design foundation formworks. Formwork for individual foundations, which are typically planned as socket foundations, differs from formwork for strip foundations. For more details and information download the drawing file. Thank you for visiting our website cadbull.com.
Uploaded by:
viddhi
chajjed

