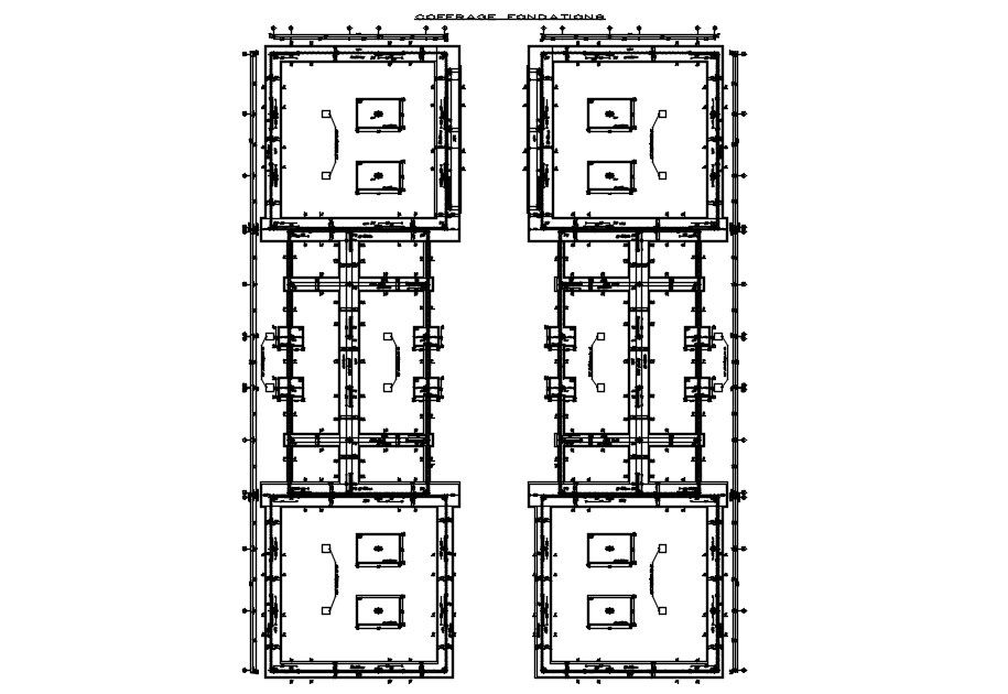
Detailed 2D design of foundation formwork in AutoCAD drawing, CAD file, dwg file
Description
This architectural drawing is Detailed 2D design of foundation formwork in AutoCAD drawing, CAD file, dwg file. It has vertically arranged upright timbers to which pre-assembled sheeting boards or sheeting sheets are fastened on the concrete side. Corner to corner, sheets on both sides are used to support the upright timbers. Whalers are positioned horizontally on spikes that are spaced every third upright wood. For more details and information download the drawing file. Thank you for visiting our cadbull.com.
Uploaded by:
viddhi
chajjed

