2D design of foundation and ground floor formwork plan in detail AutoCAD drawing, CAD file, dwg file
Description
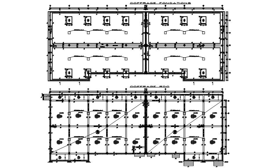
This architectural drawing is 2D design of foundation and ground floor formwork plan in detail AutoCAD drawing, CAD file, dwg file. For more details and information download the drawing file. Thank you for visiting our website cadbull.com.
Uploaded by:
viddhi
chajjed

