2D design of Form work construction planning design and all section in AutoCAD drawing, CAD file, dwg file
Description
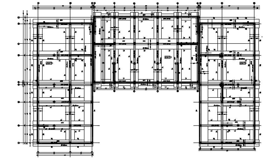
This architectural drawing is the 2D design of Formwork construction planning design and all sections in AutoCAD drawing, CAD file, and dwg file. Formwork, mold is used to form concrete into structural shape. used bar spacing in raft foundation IS dia 5(150*150). For more details information visit our pages and Download the Autocad DWG file.
Uploaded by:
viddhi
chajjed

