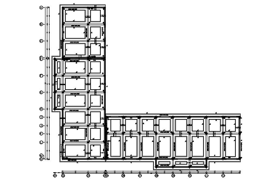
Layout plan coffrage foundation and section design in AutoCAD 2D drawing, CAD file, dwg file
Description
This architectural drawing is a Layout plan coffrage foundation and section design in AutoCAD 2D drawing, CAD file, and dwg file. Different types of joints with diagrams are mentioned. For more details information check the pages of cadbull.com & Download the 2D Autocad DWG file.
Uploaded by:
viddhi
chajjed

