Shopping mall footing column foundation details cad drawing
Description
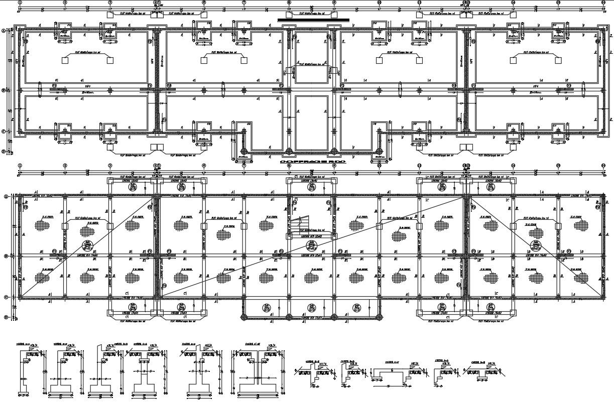
COFFRAGE FONDATIONS: PLOT 60x60xJ'usqau bon sol column H=35cm column 0.49x0.30 SF1 No. horizontal columns 1 to 16 Vertical column A to D circular column 4 coffrage RDC: longline N°01 (30x40) TS 150 x150 mm. Include centerline plan, column detail, column grid detail drawings, RCC wall section, and bar details, beam and column footing details, and entire shopping mall construction, civil and structure details.
File Type:
DWG
File Size:
3.4 MB
Category::
Construction
Sub Category::
Construction Detail Drawings
type:
Gold

Uploaded by:
Niraj
yadav

