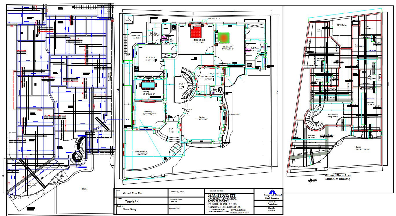
Different Ground Floor Plans with Structural Detail DWG File
Description
This architectural drawing is a Different ground floor plan with structure details in AutoCAD drawing, CAD file, and dwg file. structure drawing is also given in this drawing. dimension details are also given in this drawing. For more detailed information visit our pages and Download the 2D Autocad DWG file.
Uploaded by:
viddhi
chajjed

