27,9x50,3 Residential First Floor Plan in AutoCAD Format
Description
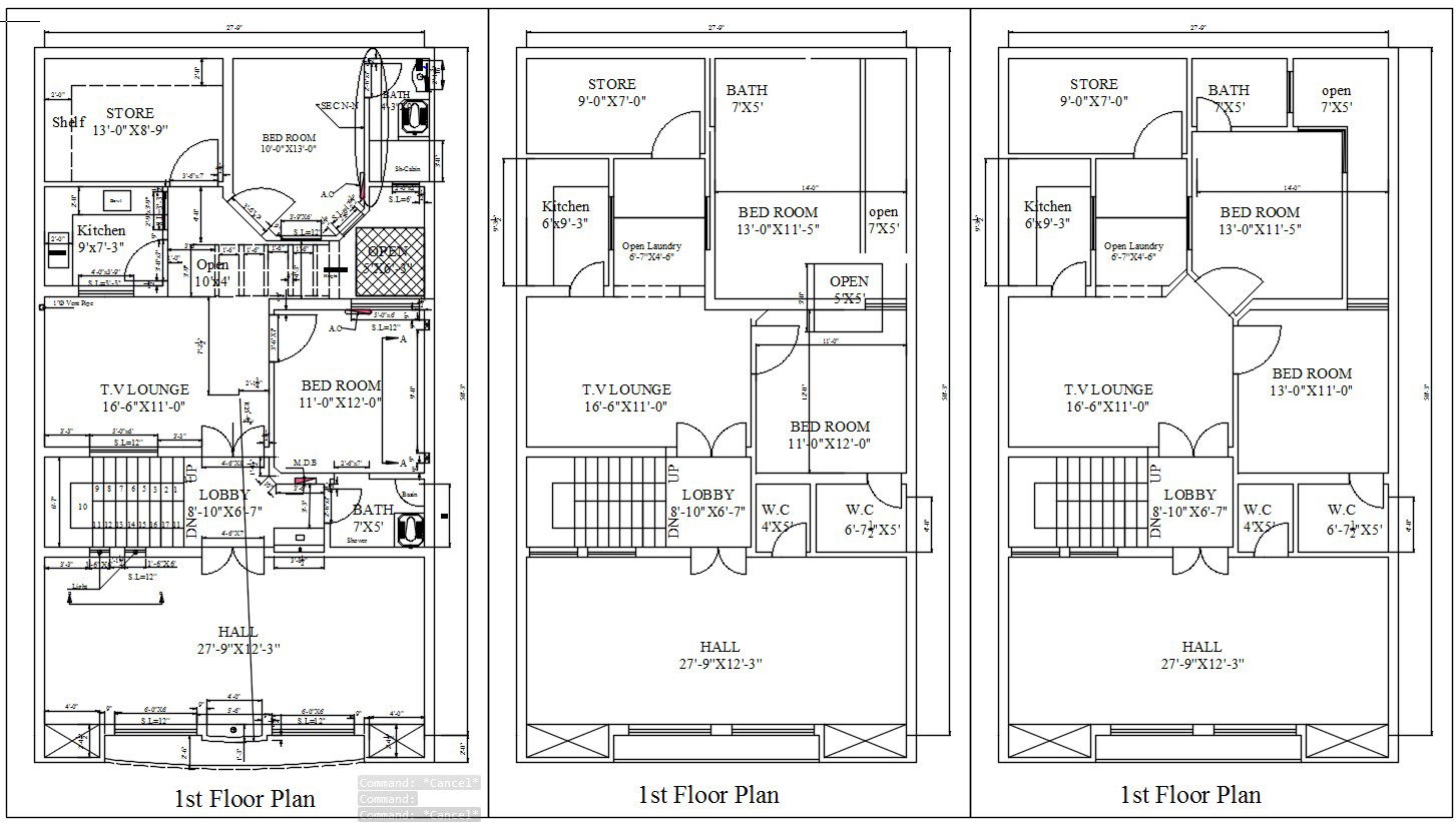
27'9"x50'3" different first-floor plans designed in AutoCAD 2D drawing. In this drawing, the hall, lobby, bedrooms with attached toilet-bathroom, tv lounge, store room, kitchen, open laundry, etc. are given with dimension details. For more detailed information visit our pages and Download the 2D Autocad DWG file.
Uploaded by:
viddhi
chajjed

