10,11x12,11 Bedroom Furniture Layout in AutoCAD Drawing
Description
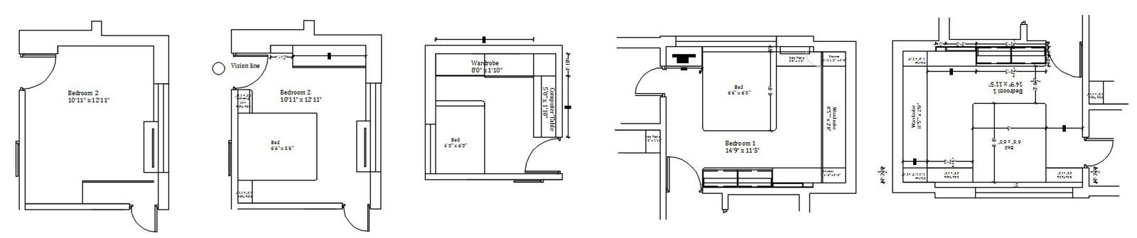
10'11"x12'11" bedroom furniture layout plan with dimension details in AutoCAD drawing. In this drawing, the wardrobe, bed, side tables, etc. are given with dimensions. For more knowledge and detailed information download the AutoCAD drawing file.
Uploaded by:
viddhi
chajjed

