Sanitary System Layout for House in CAD DWG Format
Description
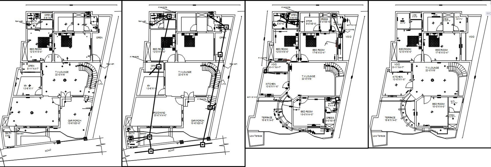
Sanitary system of the house plan in AutoCAD 2D drawing. Plumbing fixtures are used in sanitary work to transport wastewater to the disposal system. The following plumbing and sanitary supplies are used in building construction: Water and wastewater are supplied through piping, fixtures, and equipment. For more knowledge and detailed information download the AutoCAD drawing file.
Uploaded by:
viddhi
chajjed

