Coffrage foundation and water tank formwork details design in AutoCAD 2D drawing, CAD file, dwg file
Description
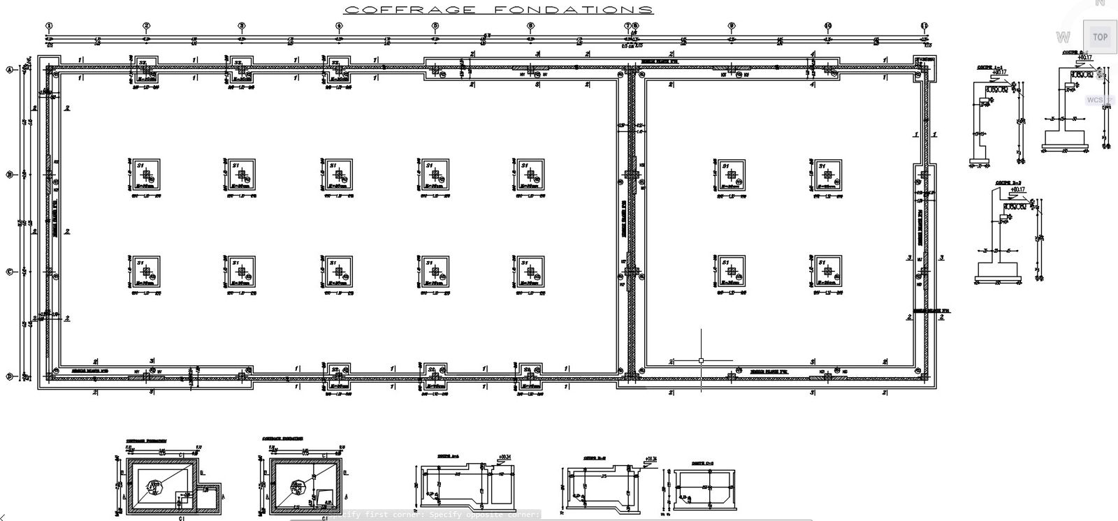
The water tank size is 3.85x2.95 mentioned. Cross sections A-A, B-B, and C-C are given with details. Strip foundations are given in this drawing. Cross sections 1-1, 2-2, and 3-3 of the underground foundation design are given with details. For more knowledge and information download the drawing file.
Uploaded by:
viddhi
chajjed
