2D drawing of Coffrage foundation with formwork details in AutoCAD, CAD file, dwg file
Description
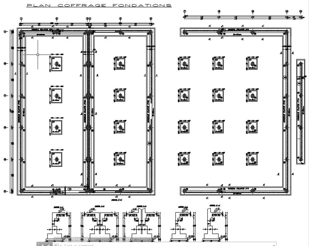
Coffrage foundation with formwork details design in AutoCAD 2D drawing given. Cross sections 1-1, 2-2, 3-3, 4-4, and 4’-4’ of the foundation structure below the ground level are designed in this file. For more knowledge and information download the drawing file.
Uploaded by:
viddhi
chajjed

