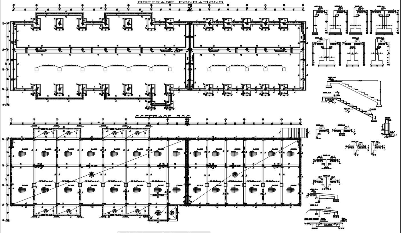
Coffrage foundation and raft foundation layout plan with reinforcement details in AutoCAD 2D drawing, CAD file, dwg file
Description
Coffrage foundation and raft foundation layout plan with reinforcement details in AutoCAD 2D drawing. The foundation structure below the ground level section design is given. Staircase design with reinforcement and formwork details are also given. For more knowledge and information download the drawing file.
Uploaded by:
viddhi
chajjed

