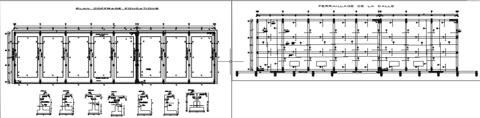
Coffrage foundation and slab reinforcement details design in AutoCAD 2D drawing, CAD file, dwg file
Description
Coffrage foundation and slab reinforcement details design in AutoCAD 2D drawing. Foundation structures below the ground-level sections are also designed with dimension details. For more knowledge and detailed information download the AutoCAD dwg file.
Uploaded by:
viddhi
chajjed

