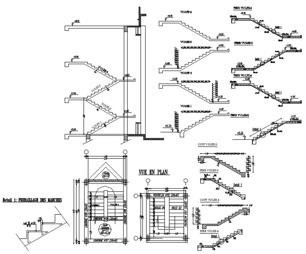
Different sections of the staircase design with formwork and reinforcement details are designed in AutoCAD 2D drawing
Description
Different sections of the staircase design with formwork and reinforcement details are designed in AutoCAD 2D drawing. For more knowledge and detailed information download the 2D AutoCAD dwg file.
Uploaded by:
viddhi
chajjed

