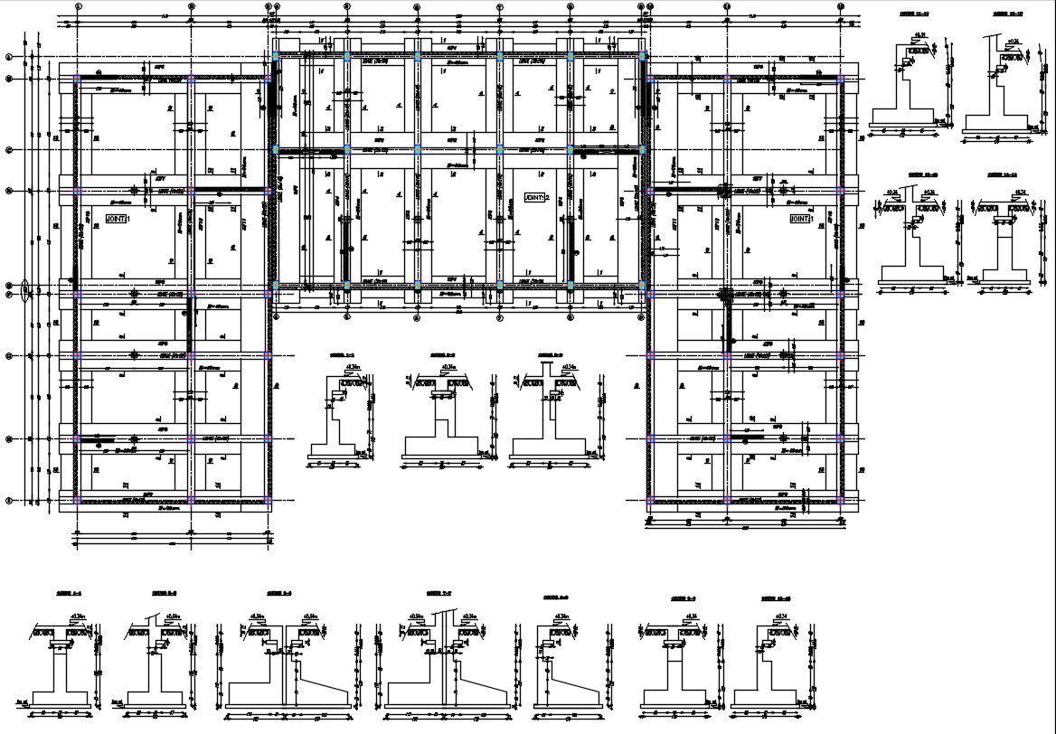
2D drawing of wall formwork layout plan and underground foundation structure details in AutoCAD, CAD file, dwg file
Description
2D drawing of wall formwork layout plan and underground foundation structure details in AutoCAD. In this drawing, cross sections of the foundation structure below the ground-level design are given with details. For more details information check the pages of cadbull.com & Download the 2D Autocad DWG file.
Uploaded by:
viddhi
chajjed

