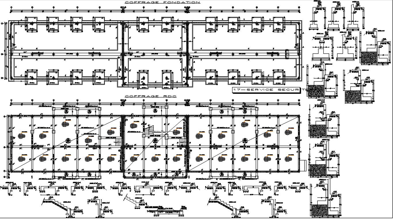
Coffrage foundation plan with formwork details, raft footing layout plan, Structural batten plan details in AutoCAD 2D drawing, CAD file, dwg file
Description
Coffrage foundation plan with formwork details, raft footing layout plan, and Structural batten plan details in AutoCAD 2D drawing. Stair formwork design is given. Slab reinforcement details are also given. Different sections of the Underground foundation structure design are also given in this file. For more details information check the pages of cadbull.com & Download the 2D AutoCAD DWG file.
Uploaded by:
viddhi
chajjed

