CAD drawing of staircase plan and section design with formwork and reinforcement details in 2D AutoCAD, CAD file, dwg file
Description
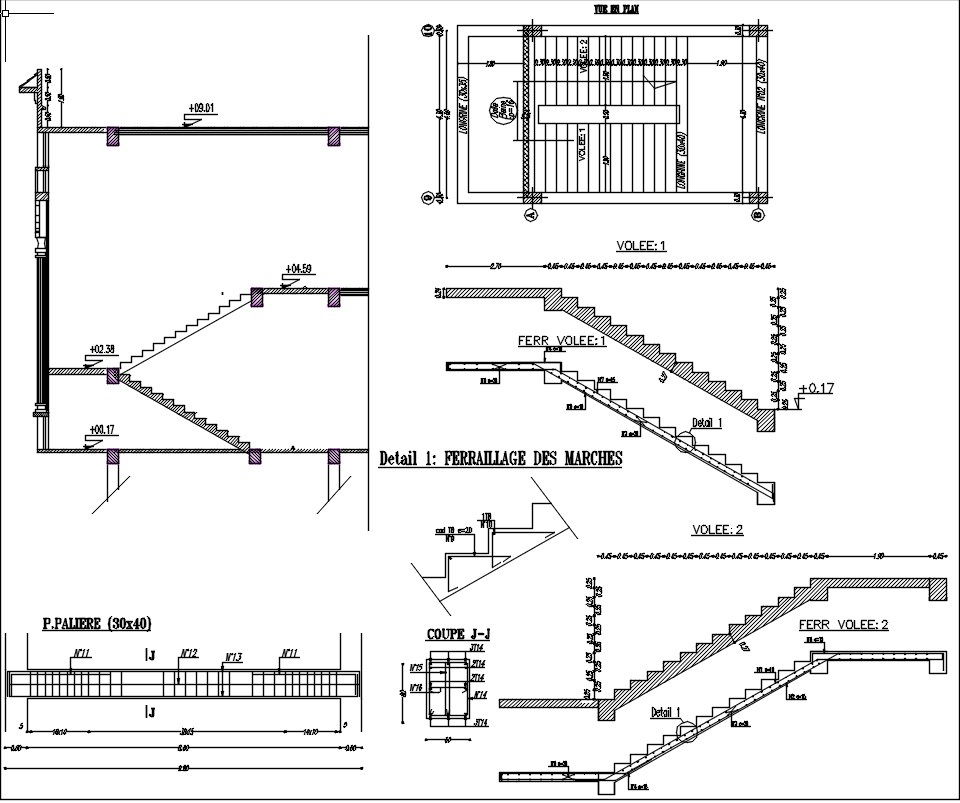
CAD drawing of staircase plan and section design with formwork and reinforcement details. The section plan of the staircase is given with dimension details. For more details information check the pages of cadbull.com & Download the 2D AutoCAD DWG file.
Uploaded by:
viddhi
chajjed

