2D drawing of staircase plan and section& landing beam design in AutoCAD, CAD file, dwg file
Description
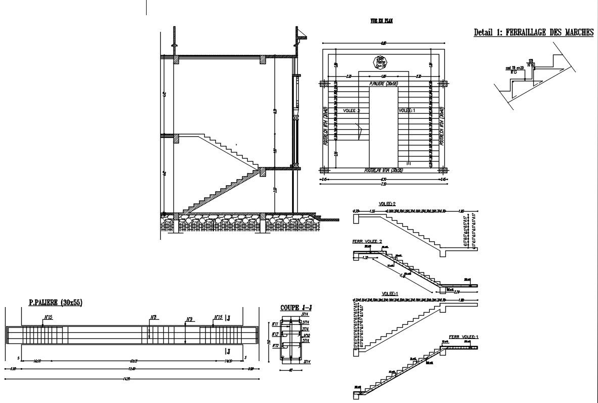
2D drawing of staircase plan and section& landing beam design in AutoCAD. 30x55 size landing beam is given with details. formwork and reinforcement details of the staircase section design are given in this file. For more knowledge and detailed information download the 2D AutoCAD dwg file.
Uploaded by:
viddhi
chajjed

