Raft foundation, coffrage foundation layout plan and footing sections design in AutoCAD 2D drawing, CAD file, dwg file
Description
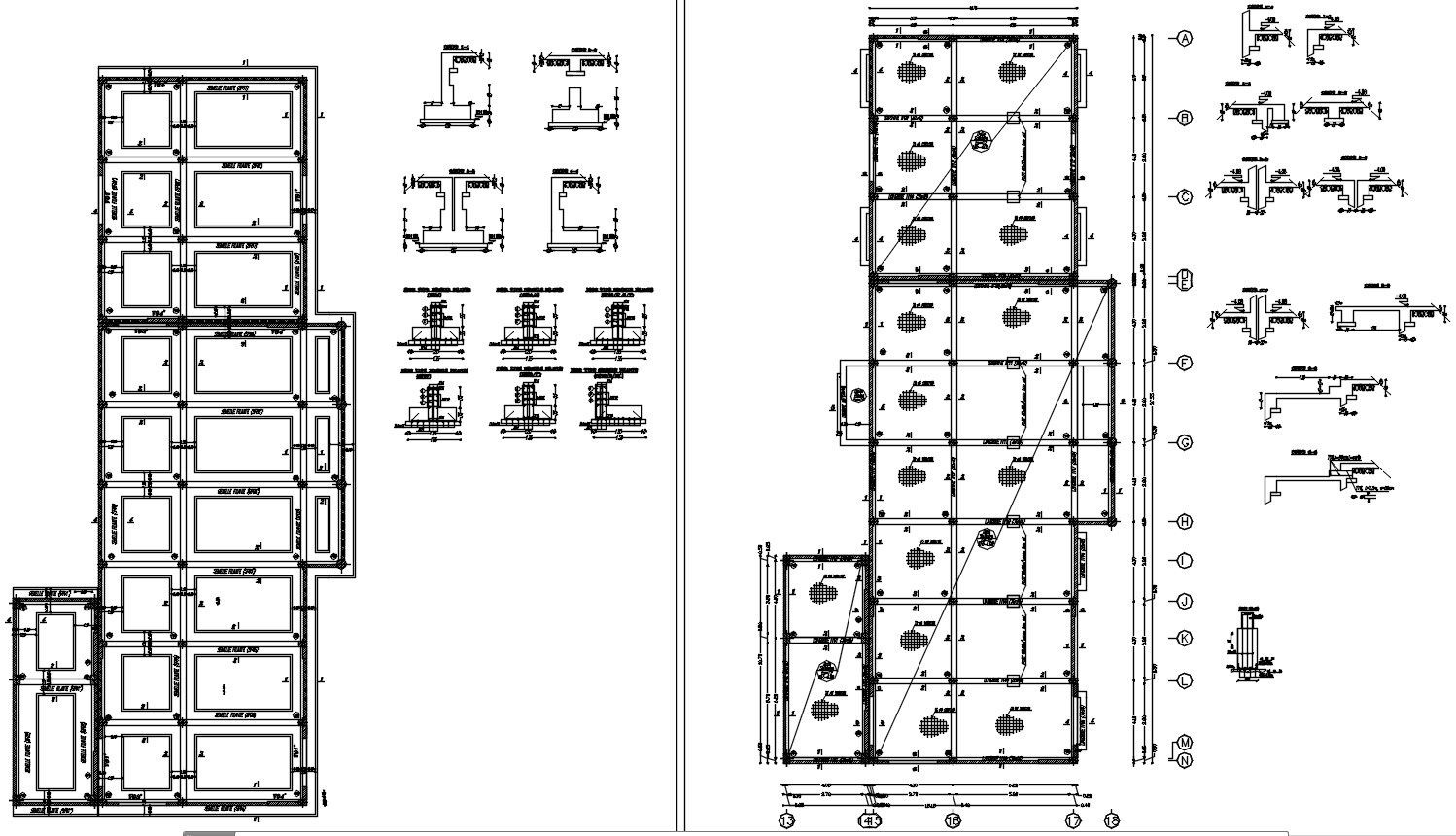
Raft foundation, coffrage foundation layout plan, and footing sections design in AutoCAD 2D drawing, CAD file, dwg file. reinforcement details of the raft foundation design are given. structural batten layout plan sections are also designed in this file. For more knowledge and detailed information download the 2D AutoCAD dwg file.
Uploaded by:
viddhi
chajjed

