41,3x61,9 House Floor Plan AutoCAD DWG Drawing File
Description
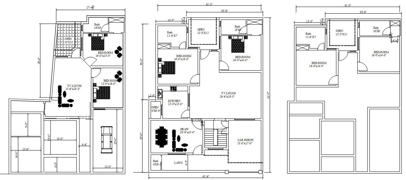
41'3"x61'9" house floor plan design in AutoCAD 2D drawing, CAD file. In this drawing, two bedrooms, a kitchen, a living room, a TV lounge, a car porch, a lawn, a toilet-bathroom, an open space, etc. are given with dimension details. For more knowledge and detailed information download the 2D AutoCAD dwg file.
Uploaded by:
viddhi
chajjed

