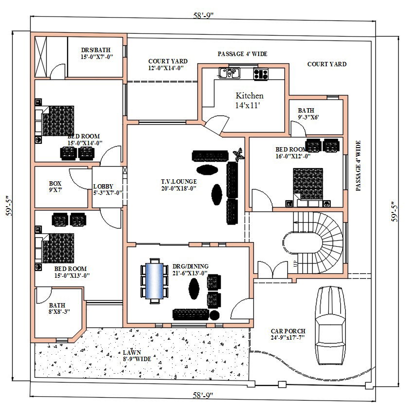
58,9x59,5 AutoCAD 2D House Plan with Furniture Layout
Description
58'9"x59'5" floor plan of the house with furniture details in AutoCAD 2D drawing. three bedrooms with attached toilet-bathroom, TV lounge, dining room, kitchen, courtyard, car porch, lawn, etc. are given with dimension details. For more knowledge and detailed information download the 2D AutoCAD dwg file.
Uploaded by:
viddhi
chajjed

