House elevation and cross sections in AutoCAD 2D drawing
Description
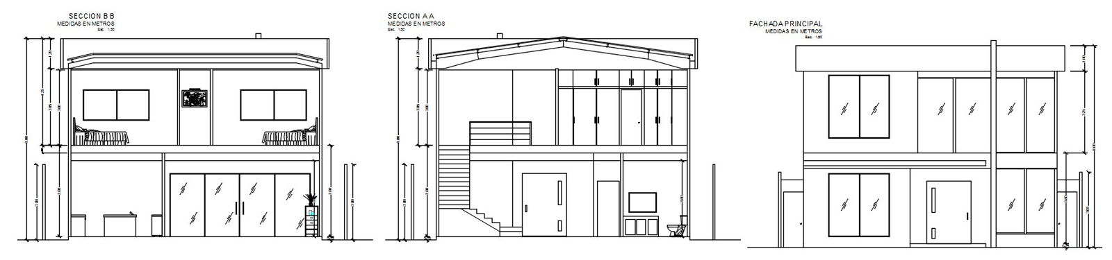
House elevation and different cross sections design in AutoCAD 2D drawing, CAD file. Cross sections A-A and B-B of the house design are given with dimension details. For more detailed information download the 2D AutoCAD dwg file.
Uploaded by:
viddhi
chajjed

