8x16m Ground Floor House Layout AutoCAD DWG Drawing
Description
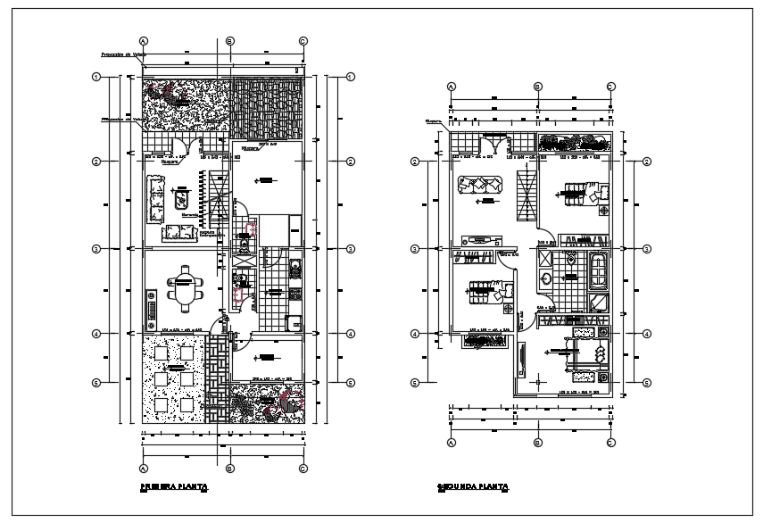
8x16m architecture ground floor house plan AutoCAD model is given in this file. This is G+ 1 house building. On this ground floor plan, a car parking, garden, study room, kitchen, dining room, living room, and common bathroom is available. For more details download the AutoCAD drawing file from our cadbull website. Thank you for downloading the AutoCAD files from our website.
Uploaded by:
