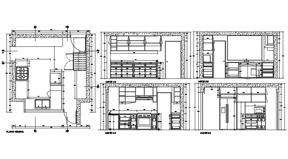
4352x4370mm modular kitchen plan and its section views
Description
4352x4370mm modular kitchen plan and its section views are given in this AutoCAD file. Here, 4 types of cut section views are given. In the section DD, door side views are given. In the section CC, gas burner side views are given. 4 gas burners is given in this kitchen. In the section AA & BB, the cupboard designs are given. All the cupboard works are done by using wooden materials.
Uploaded by:

