15x24m two story sport building plan 2d AutoCAD drawing
Description
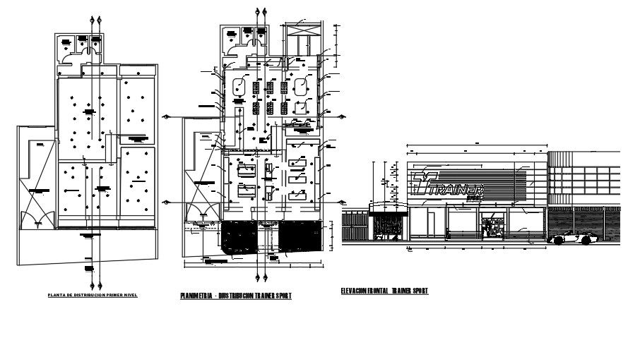
15x24m two story sport building plan 2d AutoCAD drawing is given in this file. This is a sports trainer center. The total height of this sports trainer building is 8.43m. On this ground floor area, the garage, reception, office room, and front ramp is available. On this first floor, the playing area is available.
Uploaded by:
