The water intake pump shelter base plate panel drawing
Description
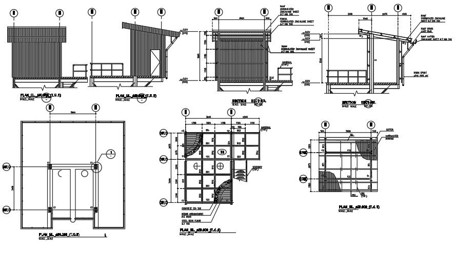
The water intake pump shelter base plate panel drawing is given in this AutoCAD file. Framing plan and roof plans are given. The length and breadth of the roof plan areas are 4.6m and 4m respectively. The length and breadth of the framing panel is 5.8m and 5.5m respectively. Here, the panel elevation and section drawings are given. The total height of the panel is 3.865m.
File Type:
DWG
File Size:
915 KB
Category::
Dwg Cad Blocks
Sub Category::
Autocad Plumbing Fixture Blocks
type:
Gold
Uploaded by:

