Base Frame Design of Incinerator in AutoCAD 2D DWG File
Description
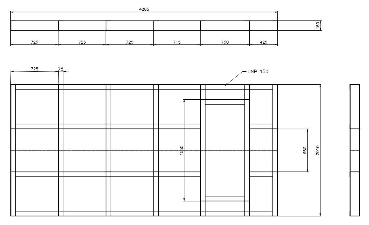
The base frame design of the incinerator in AutoCAD 2D drawing, CAD file. dimension details of the base frame are given in this file. For more detailed information download the 2D AutoCAD dwg file.
File Type:
3d max
File Size:
3.3 MB
Category::
Mechanical and Machinery
Sub Category::
Factory Machinery
type:
Gold
Uploaded by:
viddhi
chajjed

