Layout plan of industrial plant design in AutoCAD 2D drawing, CAD file, dwg file
Description
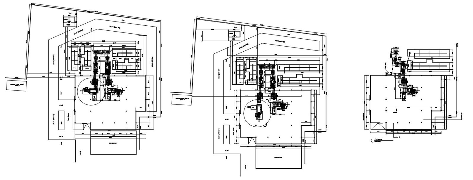
Layout plan of industrial plant design in AutoCAD 2D drawing, CAD file. The arrangement of the departments and services in a space used as an industrial plant is visualized in the layout of the facility. This arrangement was created as a consequence of an engineering analysis comparing many potential configurations to address a particular production cycle. For more detailed information download the 2D AutoCAD dwg file.
Uploaded by:
viddhi
chajjed

