Column reinforcement details of the different floors in AutoCAD 2D drawing, CAD file, dwg file
Description
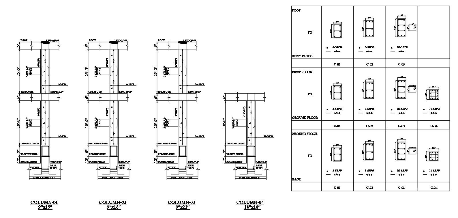
Column reinforcement details of the different floors in AutoCAD 2D drawing. 9"x15", 9"x18", 9"x21", and 18"x18" sized column sections are given with details. For more detailed information download the 2D AutoCAD dwg file.
Uploaded by:
viddhi
chajjed

