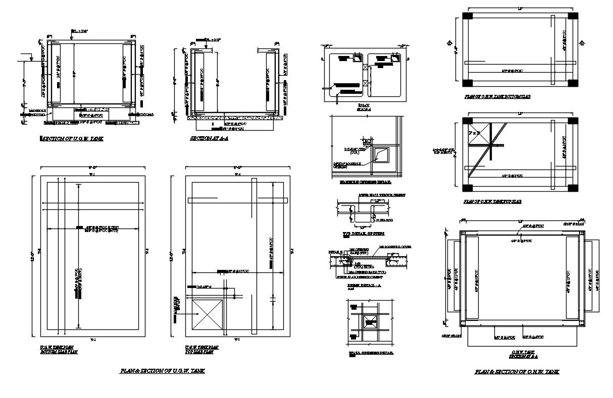
Plan and section of underground water tank and overhead water tank in AutoCAD 2D drawing, CAD file, dwg file
Description
Plan and section of the underground water tank and overhead water tank in AutoCAD 2D drawing, CAD file. For more detailed information download the 2D AutoCAD dwg file.
Uploaded by:
viddhi
chajjed

