Layout plan of an industrial plant with details in AutoCAD 2D drawing, CAD file, dwg file
Description
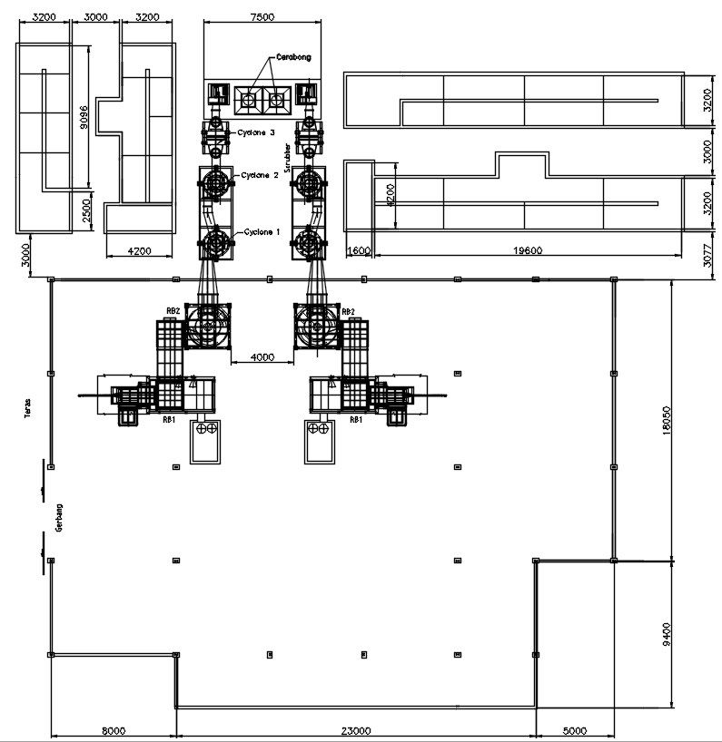
Layout plan of an industrial plant with details in AutoCAD 2D drawing, CAD file. Dimension details are also given in this file. For more detailed information download the 2D AutoCAD dwg file.
Uploaded by:
viddhi
chajjed

