Detailed design of cross section of the incinerator plant in AutoCAD 2D drawing, CAD file, dwg file
Description
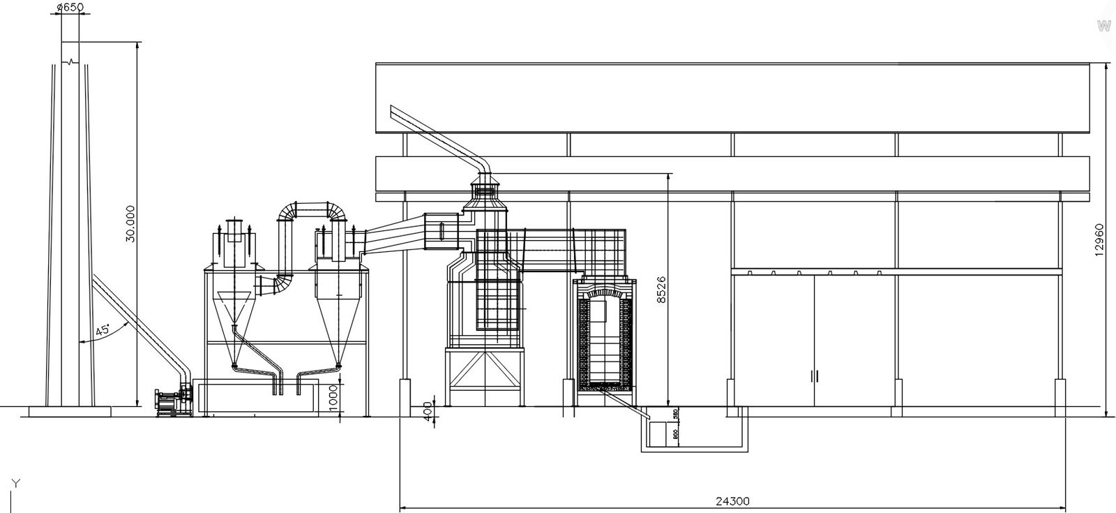
Detailed design of cross-section of the incinerator plant in AutoCAD 2D drawing. The height of the cooling tower is 30000 and 650 diameter is specified. For more detailed information download the 2D AutoCAD dwg file.
Uploaded by:
viddhi
chajjed

