First chamber main frame of the incinerator design in AutoCAD 2D drawing, CAD file, dwg file
Description
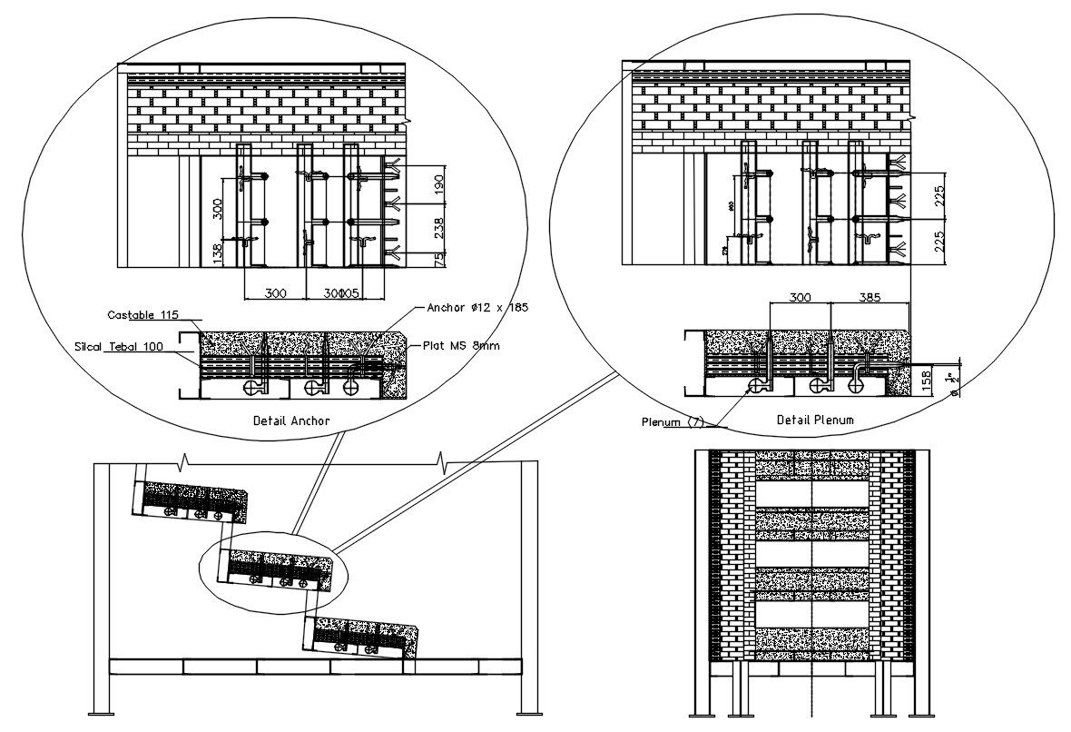
First chamber main frame of the incinerator design in AutoCAD 2D drawing. Anchor and plenum details are given with dimensions. For more detailed information download the 2D AutoCAD dwg file.
Uploaded by:
viddhi
chajjed

