Hydraulic structure second floor plan, roof plan and heater connection design in AutoCAD 2D drawing, CAD file, dwg file
Description
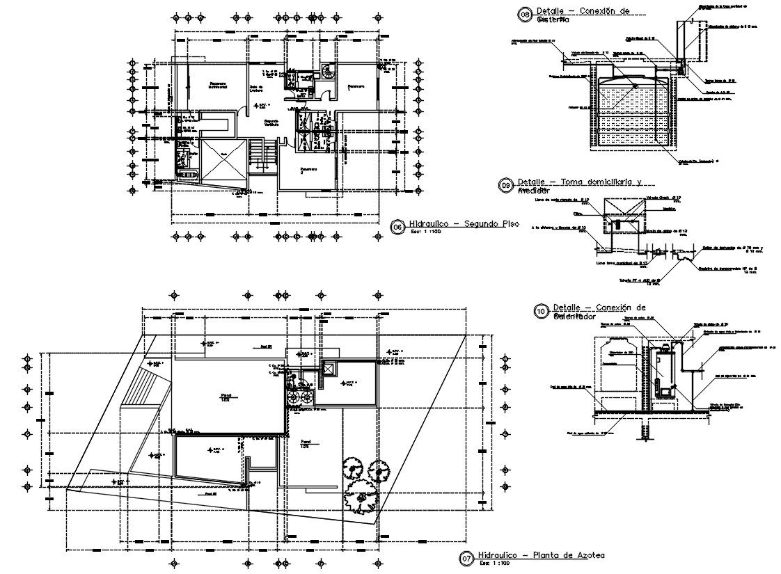
Hydraulic structure second-floor plan, roof plan, and heater connection design in AutoCAD 2D drawing. Detail of the Home socket and meter, Detail of the Cistern Connection, and other details of designs are given in this file. For more knowledge and information download the 2D AutoCAD dwg file.
Uploaded by:
viddhi
chajjed

