2D Ground Floor Plan Designs in AutoCAD DWG Format
Description
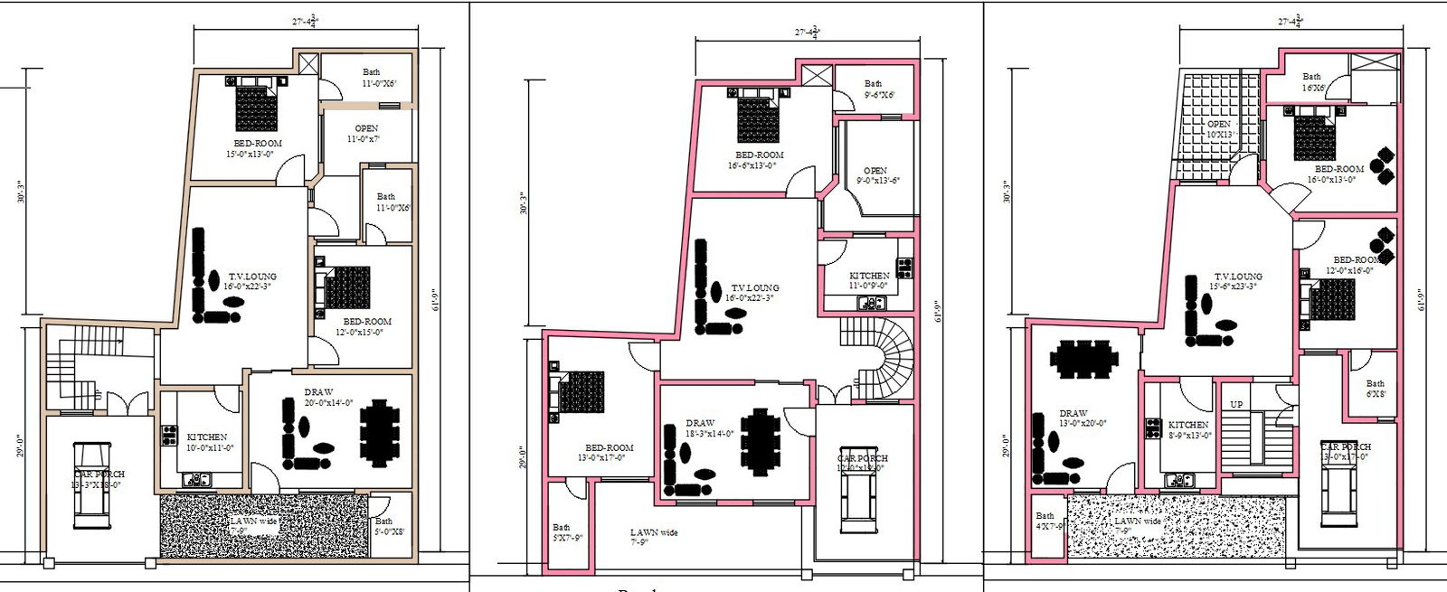
2D design of different ground floor plans in AutoCAD drawing. Two bedrooms with attached toilet-bathroom, TV lounge, open space, kitchen, drawing room, Car porch, lawn area, etc. are given in this file. For more knowledge and information download the 2D AutoCAD dwg file.
Uploaded by:
viddhi
chajjed

