2D design of lift formwork section with details in AutoCAD drawing, CAD file, dwg file
Description
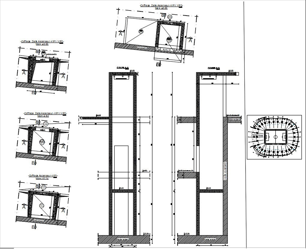
2D design of lift formwork section with details in AutoCAD drawing. Coupe A-A and B-B of the lift formwork section design details are given. Niv 0.00, -4.62, and -10.24 section designs are given in this file. For more knowledge and detailed information download the 2D AutoCAD dwg file.
Uploaded by:
viddhi
chajjed

