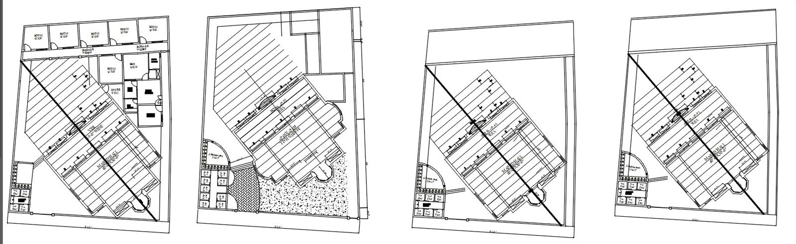
Different ground floor plans of mosque design in AutoCAD 2D drawing, CAD file, dwg file
Description
Different ground floor plans of mosque design in AutoCAD 2D drawing. Different-sized rooms, drawing room, living room, passage, masjid hall, store room, kitchen, washrooms, etc. are given in this file. For more knowledge and detailed information download the 2D AutoCAD dwg file.
Uploaded by:
viddhi
chajjed

