Layout plan of the industrial area in AutoCAD, CAD file, dwg file
Description
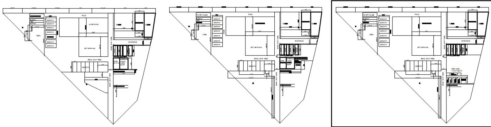
Layout plan of the industrial area in AutoCAD 2D drawing. Godown, powerhouse, different roads, bungalows, open areas, quarters, and other details are given in this file. For more knowledge and detailed information download the 2D AutoCAD dwg file.
Uploaded by:
viddhi
chajjed

