Inner door and exterior door latch details design in AutoCAD 2D drawing, CAD file, dwg file
Description
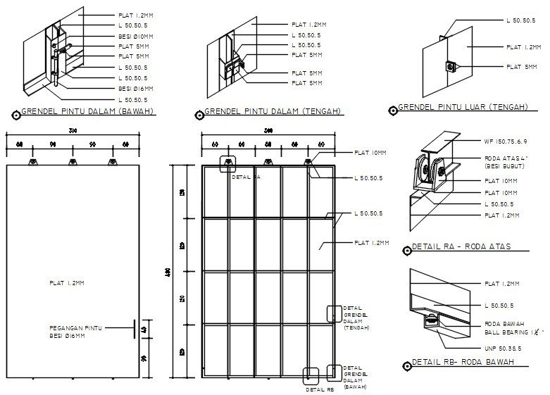
Inner door and exterior door latch details design in AutoCAD 2D drawing. Top and bottom wheel details are given. For more knowledge and detailed information download the 2D AutoCAD dwg file.
Uploaded by:
viddhi
chajjed

