Steel Stair details dwg cad files
Description
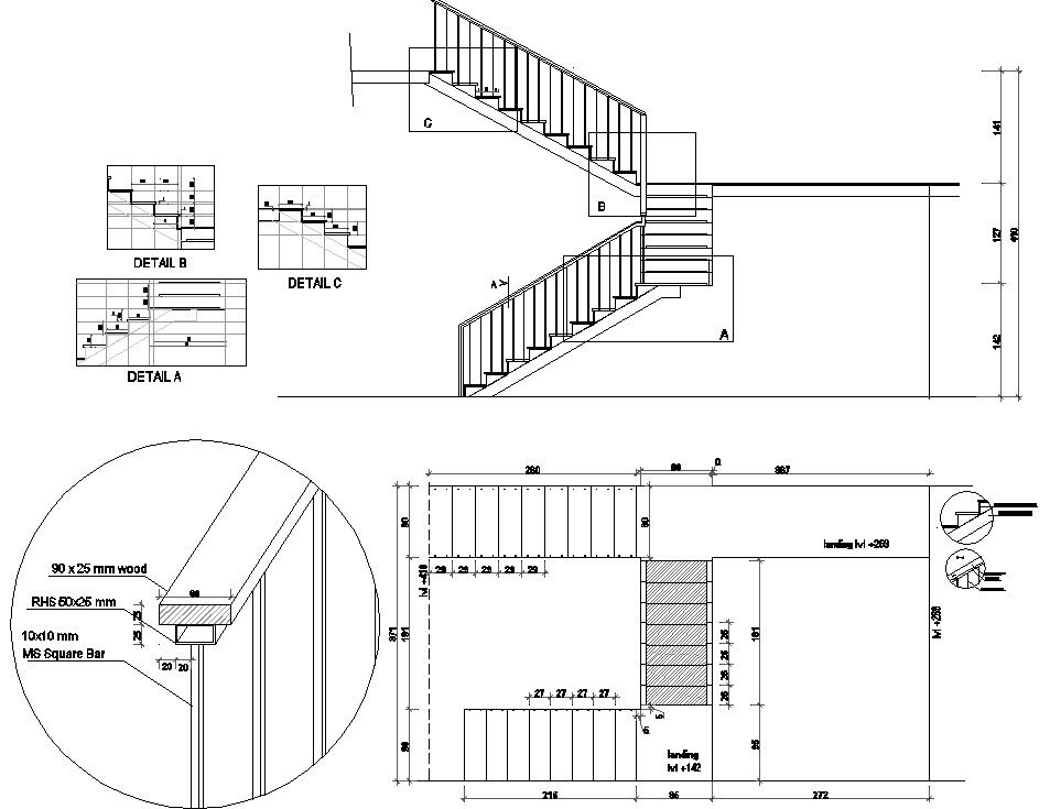
Bent Steel Plate Stair, stair platform 20 mm wood and plate also fabricated with 8 mm MS plate and RHS 145 x 82 x 4.8mm MS plated beams, with wood and steel handrail.
Uploaded by:
Umarsadhik
sadhik
Bent Steel Plate Stair, stair platform 20 mm wood and plate also fabricated with 8 mm MS plate and RHS 145 x 82 x 4.8mm MS plated beams, with wood and steel handrail.
Uploaded by:
sadhik