Detailed Incinerator Chamber Design AutoCAD 2D DWG File
Description
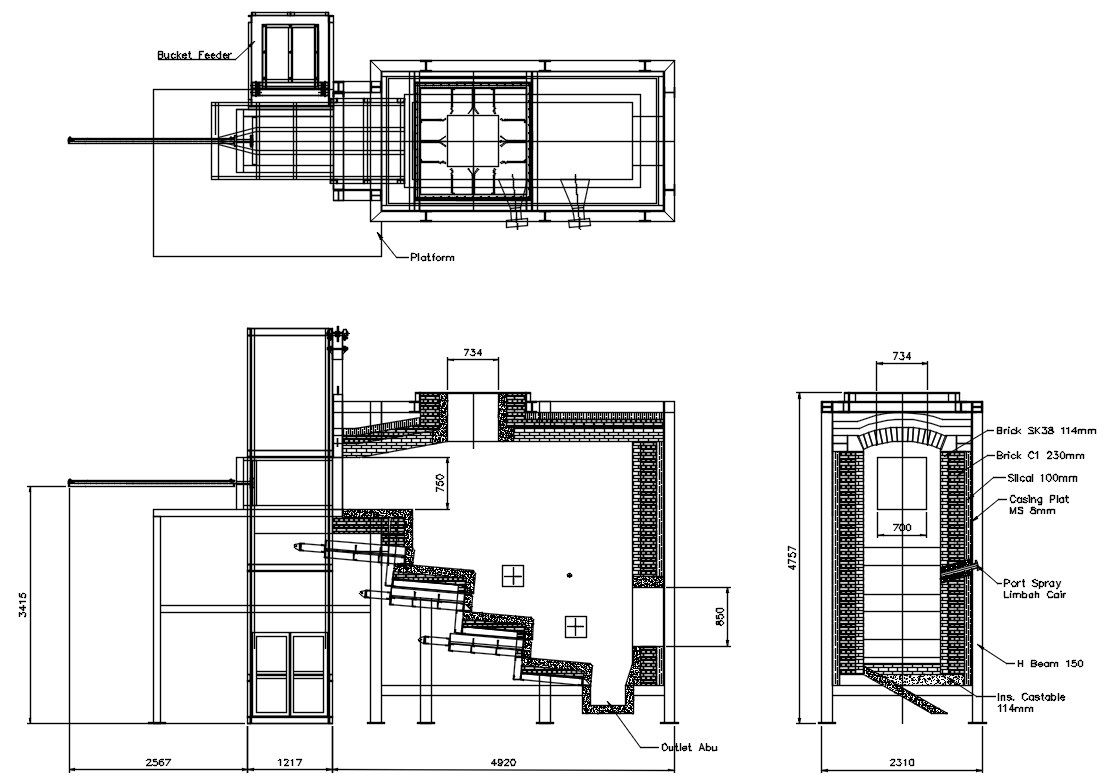
Detailed design of incinerator chamber in AutoCAD 2D drawing. There were bucket feeder, platform, H beam 150, Ins. castable 114mm, port spray, MS 8mm casing plate, 230mm and 114mm brick details, and other information are given in this file. For more detailed knowledge and information download the 2D AutoCAD file.
File Type:
3d max
File Size:
3.1 MB
Category::
Mechanical and Machinery
Sub Category::
Factory Machinery
type:
Gold
Uploaded by:
viddhi
chajjed

