Typical floor plan of the industrial plant in AutoCAD 2D drawing, CAD file, dwg file
Description
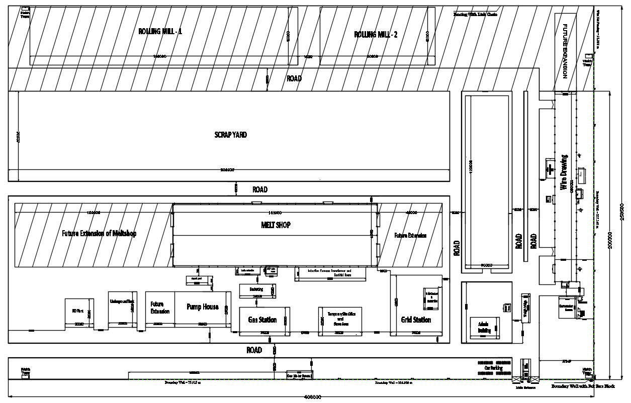
Typical floor plan of the industrial plant in AutoCAD 2D drawing. rolling mills, scrap yard, future extension of melt shop, melt shop, gas station, pump house, grid station, car parking, and other detailed information are given in this plan. For more detailed knowledge and information download the 2D AutoCAD file.
Uploaded by:
viddhi
chajjed

