Furniture Layout Plan Ground Floor Two-Story House DWG File
Description
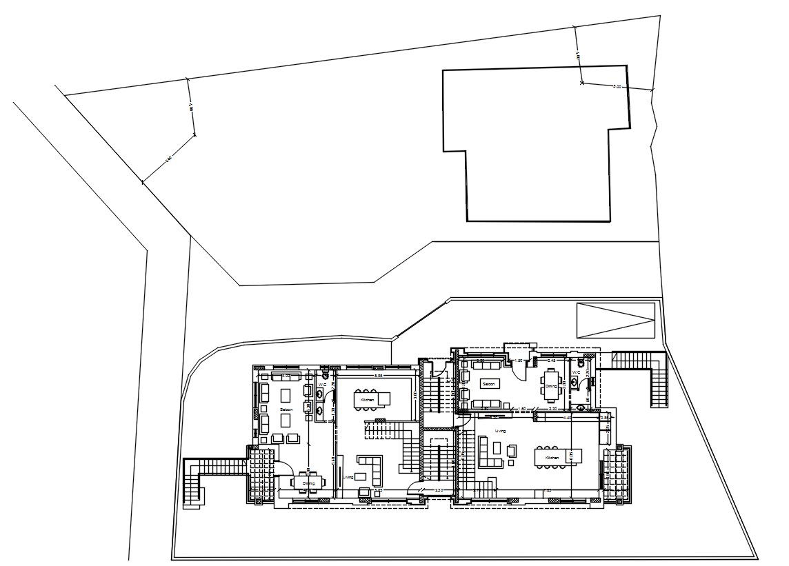
Furniture layout plan of the ground floor plan of a two-story house in AutoCAD 2D drawing. Kitchen furniture, dining table, living room furniture, washing area, toilet-bathroom blocks, and other details are given in this plan. For more detailed knowledge and information download the 2D AutoCAD file.
Uploaded by:
viddhi
chajjed

