Commercial Complex 3D AutoCAD Model Free Download
Description
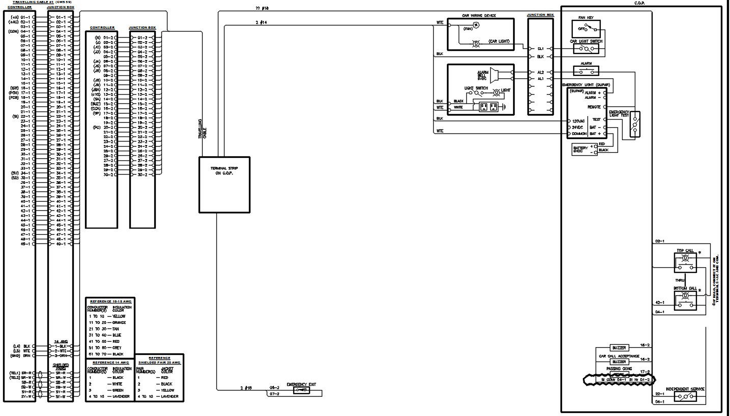
2D design of electric wiring diagram of the car in AutoCAD drawing. Vehicle wiring refers to a vehicle's electrical system, which comprises the wiring harnesses, connectors, and components that connect the vehicle's different electrical systems and gadgets. For more detailed knowledge and information download the 2D AutoCAD file.
File Type:
3d max
File Size:
2.7 MB
Category::
Electrical
Sub Category::
Electrical Automation Systems
type:
Gold
Uploaded by:
viddhi
chajjed

