Front Row-House Elevation Plan in AutoCAD DWG File
Description
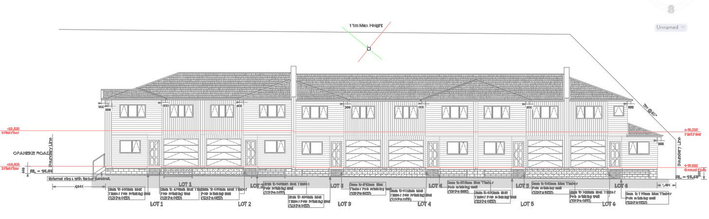
The front elevation of the row house design is given in the AutoCAD 2D drawing. For more knowledge and detailed information download the AutoCAD 2D dwg file.
Uploaded by:
viddhi
chajjed
The front elevation of the row house design is given in the AutoCAD 2D drawing. For more knowledge and detailed information download the AutoCAD 2D dwg file.
Uploaded by:
chajjed